Systemy gaśnicze wodne Turbo-Lux
Turbo-Lux
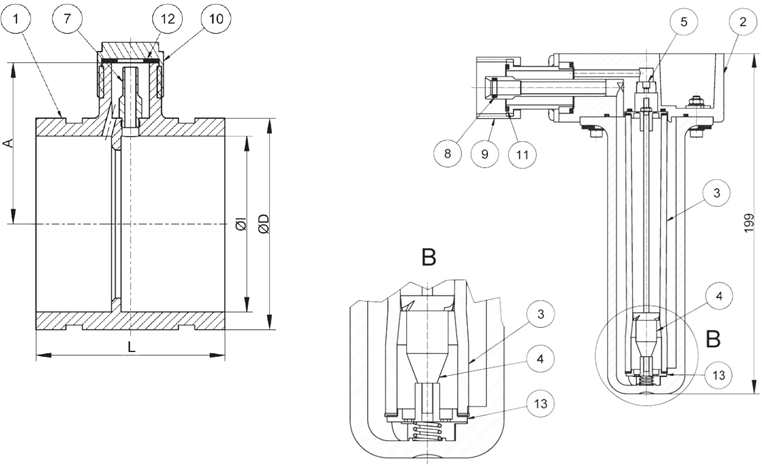
Przepływomierz Turbo-Lux, połączenie rowkowane.




Działanie
- Aby uniknąć uszkodzenia rotametru, podczas uruchamiania pompy zawór regulacyjny linii obejścia musi być częściowo zamknięty (jednak musi pozostać otwarty na przynajmniej 30%), a następnie należy go całkowicie otworzyć.
- Gdy przepływ się ustabilizuje, dokonaj odczytu wartości z najszerszej części pływaka.
- Przy pierwszym uruchomieniu, w rotametrze może zbierać się powietrze. Aby usunąć pęcherzyki powietrza, poluzuj nakrętkę i obracaj rotametr do momentu pozbycia się pęcherzyków. Ponownie ustaw rotametr we właściwym położeniu i dokręć nakrętkę.
- Skala podana jest w litrach na minutę (l/min) i galonach na minutę (gal/min), oraz procentowo, przy czym 100% to moc znamionowa pompy zgodnie z tabelą skali odczytu.
- Po dokonaniu odczytu, usuń rotametr i nałóż zaślepkę ochronną.
Uwaga! Jeśli podczas badania szczelności (testu hydrostatycznego) przepływomierz ma zostać poddany działaniu ciśnienia przewyższającego 16 bar, upewnij się, że zamontowana jest zaślepka, a nie rotametr.
Konserwacja
W przypadku zatkania filtra, przepływomierz może zostać odesłany do wyczyszczenia bezpośrednio do producenta.
Montaż
- Na podstawie tabliczki znamionowej sprawdź, czy dostarczony przepływomierz odpowiada zamówieniu.
- Chociaż obudowa może być montowana w dowolnej pozycji, rotametr musi być ustawiony w orientacji pionowej i skierowany w dół.

- Usuń zaślepkę i zamontuj rotametr, dokręcając go ręcznie.
- Przed i za płytą otworową wymagany jest prosty odcinek uspokajający, zależny od średnicy nominalnej (D).

Ważne dodatkowe informacje:
- Do instalacji zaworów, pomp lub rur z trójnikiem wymagana jest ścieżka wlotowa o długości co najmniej 10 x D. Z tego co najmniej
5 x D musi być prostym odcinkiem bezpośrednio przed płytą otworową. - Bez zaworu, pompy lub trójnika przed przepływomierzem należy zachować prostą ścieżkę o długości 5 x D przed płytą otworową.
- Strefa odpływu za płytą otworową musi wynosić co najmniej 2 x D.
- Podłączone rurociągi muszą mieć taki sam rozmiar jak płyta otworowa.
- Rurociągi muszą być zawsze całkowicie wypełnione. Przykłady szczególnych sytuacji instalacyjnych są zilustrowane na poniższych rysunkach:

- Gdy miernik nie jest używany, wyjmij go i schowaj. Załóż z powrotem nasadkę i dokręć ręcznie.
Date techniczne
| Parametr | Wartość |
|---|---|
| Średnica | Od 2"/DN50 do 12"/DN300 |
| Maksymalne ciśnienie robocze | 16 bar (232 psi) |
| Temperatura | Od 4°C do 50°C (Od 39°F do 122°F) |
| Połączenie | Rowkowane |
| Dokładność | ±2% FM, ±5% LPCS, ±2,5% VdS |
| Kalibrowanie | W standardzie dostarczony z certyfikatem kalibracji miernika bypassu |
| Montaż | Zachować odcinek długości 5 średnic rury przed urządzeniem i 2 średnic rury za urządzeniem |
| FM - 2”/DN50 do 12”/DN300; LPCB & VdS - 2”/DN50 do 8”/DN200 | |
Materiały i wymiary

| Numer | Nazwa | Materiał |
|---|---|---|
| 1 | Korpus | Stal nierdzewna: (2"/DN50 do 4"/DN100) |
| 2 | Rotametr boczny | Poliamid (PA) |
| 3 | Rurka pomiarowa | Poliweglan (PC) |
| 4 | Pływak | Stal nierdzewna |
| 5 | Zawór rotametru | Stal nierdzewna |
| 6 | Rurka impulsowa | Mosiądz |
| 7 | O-ring | Kauczuk nitrylowy (NBR) |
| 8 | Zaślepka gwintowana | Stal nierdzewna |
| 9 | Zaślepka | Aluminium |
| 10 | O-ring | Kauczuk nitrylowy (NBR) |
| 11 | Uszczelka | Kauczuk nitrylowy (NBR) |
| 12 | Filtr | Stal nierdzewna |



- Aprobata FM
- Aprobata LPCB
- Aprobata VdS